558/907
3 rooms cabin - LE THYMEL 44
- Type of accommodation :
- Apartment in Residence
- Accommodation :
- 3 rooms cabin
- Maximum capacity :
- 6 persons
- Area :
- 38 sqm
- Area :
- Valloire - Les Verneys
- Exposure :
- Facing South
- Neighbourhood :
- Les Verneys
- Good Deals Valloire Réservations :
- Benefit from -5% to -25% on your ski passes with your accommodation's booking !
WINTER : Small residence in hamlet Les Verneys, at 2km from Valloire centre, 450m from the Verneys chair lift & ESF ski school. Free beginner's ski lift close by, 400m from Nordic slopes. Ski Rental, bakery and newsagent at 400m. Paying shuttle service at 230m.
SUMMER : Small residence in hamlet Les Verneys, at 2km from Valloire centre, at 750m from the golf course, tennis courts & trail departures. Bakery and newsagent at 400m.
SUMMER : Small residence in hamlet Les Verneys, at 2km from Valloire centre, at 750m from the golf course, tennis courts & trail departures. Bakery and newsagent at 400m.
About
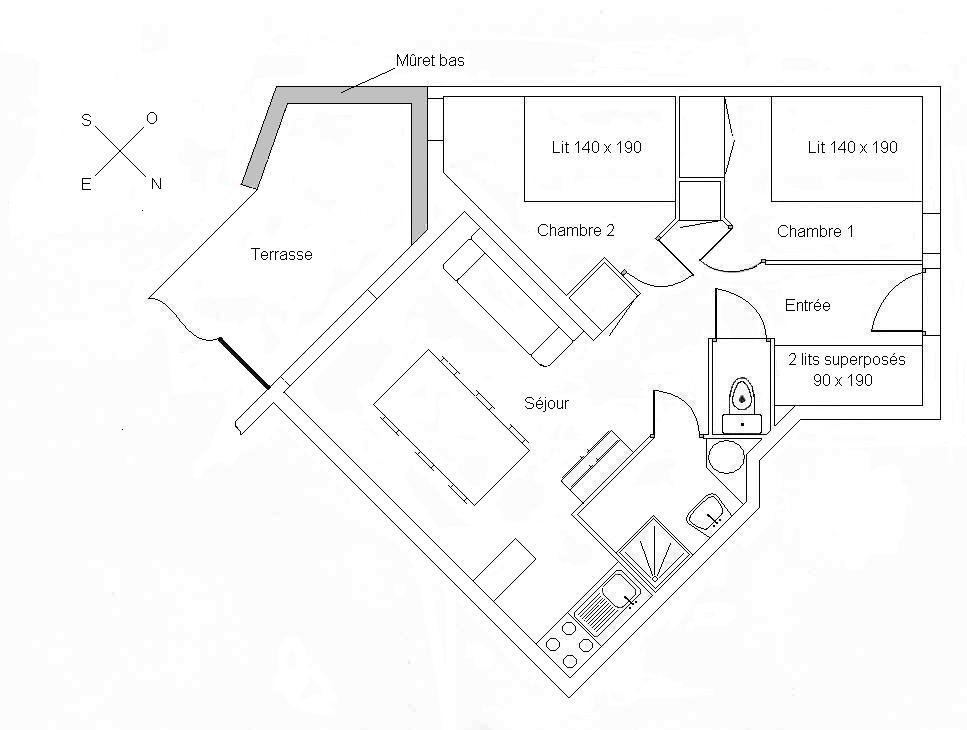
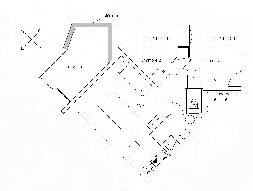
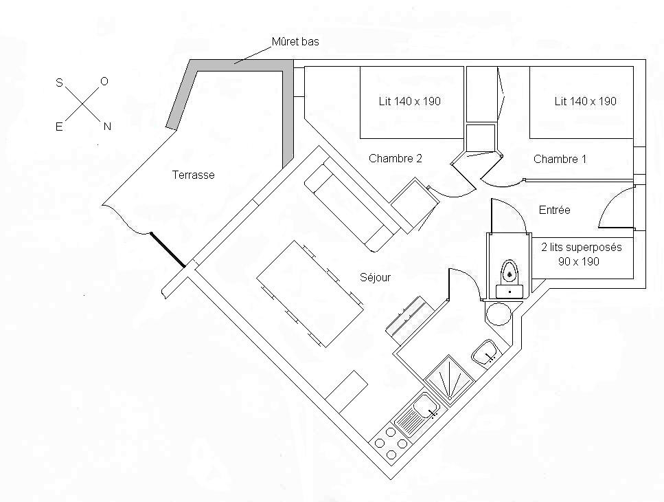
DescriptionBEDS:
Bedroom 1 (6m²): 1 double bed (140x190cm)
Bedroom 2 (5.50m²): 1 double bed (140x190cm)
Entrance (open to living room/ 4m²): 2 bunk beds (2x 90x190cm)
Bedding with blankets.
EQUIPMENT:
Living room (14m²/ South):
- Kitchen area: dishwasher, mini-oven, refrigerator, ceramic hob (3 burners), microwave.
- Lounge area: television.
Shower room (2m²): washbasin and shower. Separate toilet.
SERVICES/OBSERVATIONS:
Animals accepted. Bed linen and towels not provided. Final cleaning not included. Ski storage. Terrace (3m²/ South). Residential parking (no designated spaces).
Numéro d'enregistrement : 73306000015B5
Bedroom 1 (6m²): 1 double bed (140x190cm)
Bedroom 2 (5.50m²): 1 double bed (140x190cm)
Entrance (open to living room/ 4m²): 2 bunk beds (2x 90x190cm)
Bedding with blankets.
EQUIPMENT:
Living room (14m²/ South):
- Kitchen area: dishwasher, mini-oven, refrigerator, ceramic hob (3 burners), microwave.
- Lounge area: television.
Shower room (2m²): washbasin and shower. Separate toilet.
SERVICES/OBSERVATIONS:
Animals accepted. Bed linen and towels not provided. Final cleaning not included. Ski storage. Terrace (3m²/ South). Residential parking (no designated spaces).
Numéro d'enregistrement : 73306000015B5
- Equipments/Services :
Leisure and Amenities
- Distance :
- 2 km from the center
- 0.45 km from the slopes
- 0.4 km from the ski school
- 0.4 km from the shops
- 2 km from the leisure center
- 2 km from the ESF mini-club (3 to 12 years)
- 0.2 km from the paying shuttle service (over 18 years old)
- 19 km the the railway station
Situation map
Route Planner
Destination
26-28 CHEMIN DES CHOSEAUX VERNEYS
LES VERNEYS
73450
VALLOIRE
GPS coordinates
Latitude : 45.1487
Longitude : 6.418269
Opinion
Score on website :
(2 opinion customer)
4
/ 5
Opinion customer
August 2021
Sylvie
45 à 54 ans
En famille
Score :
4
/ 5
Logement fonctionnel, bien agencé et bien équipé.
Deux petites choses qui mériteraient d'être améliorées : séparer la petite terrasse des logements mitoyens par des pare-vue et équiper la terrasse d'une table suffisante pour au moins 4 personnes avec un parasol.
Conformité du descriptif
Situation géographique
Propreté du logement
Equipements du logement
Confort de la literie
Décoration du logement
Review written on 24/08/2021
August 2021
Françoise
65 ans et plus
En famille
Score :
4
/ 5
Manque d’équipement ménager ( presse citron, mixer , machine à laver).
Manque de rangement pour 8 personnes
Terrasse mais pas de table pour manger dehors
Review written on 10/08/2021
Score according to profile
Availability
558/907














































